集成了智慧管理系統的環保生態廁所(圖)
2018-06-05 13:37:10 來源:中天鴻林 瀏覽次數:
中天鴻林生態環境科技(北京)有限公司的環保生態廁所為裝配式房體,集成了真空收集系統,智慧管理系統,微生物處理系統,可實現工廠定制,現場吊裝,成品運輸,方便安裝及使用。我們的業務范圍包括:旅游景區廁所、市政廁所、移動廁所、車載式廁所、廁所改造、廁所租賃。
以下介紹兩款產品:市政版生態真空自吸生態廁所、車載巴士廁所。
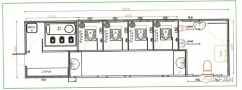
市政版生態真空自吸生態廁所

1.外觀

2.走廊

3.窗

4.便池

5.洗手盆

6.第三衛生間


7.平面布局圖

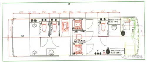
車載巴士廁所
1.全景

2.洗手盆

3.小便池

4.馬桶

5.過道

6.頂部細節

7.平面布局圖

編輯:liqing
凡注明“風景園林網”的所有文章、項目案例等內容,版權歸屬本網,未經本網授權不得轉載、摘編或利用其它方式使用上述作品。已經本網授權者,應在授權范圍內使用,并注明“來源:風景園林網”。違反上述聲明者,本網將追究其相關法律責任。