民宿設計---破舊老房如何改造成精品民宿?
第一次見到這棟殘破不堪的老房子時心里感慨頗深,心里油然而生一種立刻讓它煥然一新的沖動。應該每一位設計行業工作者都會有這種心態吧?有時候回頭想想突然覺得設計行業有一種點石成金的魔力,這也許也是愛這個行業的原因吧~

改造前的樣子

項目位于中國南方某地,包括旁邊的竹樓都是在改造范圍內的
經過實地勘測工作就開始進行設計階段了,設計方案基本會保留原始房屋主體結構不動,畢竟鄉建政策里有提出過要杜絕大拆大改,綠色開發建設合理利用本地資源。


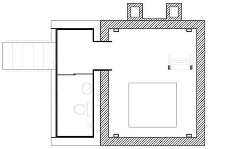
平面方案


立面方案

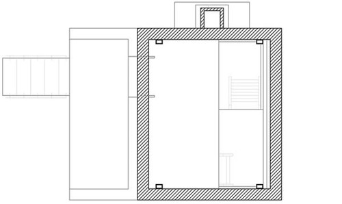
整體剖面圖
紙上談兵結束!開始動工。

拆掉破舊的石綿瓦老屋頂,重建屋頂需要達到采光好通透性好

新屋頂已出雛形
內部結構重建并裝飾完成,室內大量使用原色木質裝飾給使用者貼近自然極簡的居住環境和體現輕松簡單的田園生活。

loft形式分隔空間


晚上絕對可以躺著看星星。
看著成果即將展現在眼前,心里確實有些激動~這種感覺實在太好。
下面是完工照,經過設計后的建筑像是注入了新的生命并開始的新的建筑使命。

天色暗下來,燈光效果不錯。


做出整體院落感,有院子才叫純正的民宿
編輯:guoai
相關閱讀
民宿設計——破舊老房如何改造成精品民宿
第一次見到這棟殘破不堪的老房子時心里感慨頗深,心里油然而生一種立刻讓它煥然一新的沖動。應該每一位設計行業工作者都會有這種心態吧?有時候回頭想想突然覺得設計行業有一種點石成金的魔力,這也許也是愛這個行業的原【詳細】
民宿庭院入口可以設計成這樣
大隱于市,【詳細】
民宿與鄉村碰撞出的鄉愁,要不要嘗嘗看?
這兩年,“民宿”成了一個熱詞。【詳細】
