如何自己準備一套申請留學的景觀作品集?(上)
作者:康石石(藝術留學大拿)
鏈接:https://www.zhihu.com/question/22756882/answer/131068030
來源:知乎
漢藝國際教育,專注藝術留學作品集輔導,關注官方微信公眾號:hanyixiongdi,隨時獲取藝術留學課程資訊。知乎專欄文章每周二、周五晚6點準時更新,如咨詢、約稿,請將想了解的問題發送私信,問題將在1個工作日內得到回復。
好的作品集的話,可以從以下幾個方面參考
a.目錄(包含你的項目名稱和項目類型,可以在項目名稱下標注key words)

b.每個項目的起始頁(推薦可以使用與該項目內容相關的效果圖作為背景)

c.主審項目一定要排在作品集前面,并且每個主審項目的篇幅也應該較其他項目更長;
其他部分的組成,一般包括你本科期間的相關模型,攝影作品,手繪作品等可以體現你對這個專業的熱愛程度是如何癡迷。

d.作品集整體的圖面表達要高大上,國外普遍是做成“高級灰”的風格。要注意的是,即使是景觀設計的效果圖,也可以做成這種高級灰的效果。

e.作品集中的每個項目在場地大小,項目類型,設計概念,細部設計專注點等方面要有所區分,這樣會給審閱老師或是HR留下深刻印象。
———————————————————分割線———————————————————
2. 態度是給學校老師或HR的第一印象,所以一定要注重你放在作品集里每一張圖的質量。
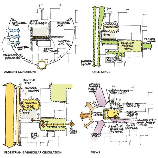
前期分析
全面、系統的場地前期分析是英國院校很重視的一點,但往往也是國內的學生最常忽視的一部分。大家更多的是關注自己方案的平面圖如何漂亮,效果圖如何酷炫。
下面大概講一下分析圖的表現方式,大致可以分為電腦制圖,手繪風格,以及通過電腦制圖體現手繪風格;
手繪風格:



編輯:wanliyao
相關閱讀
住宅水景景觀,充滿活力!美不勝收!
面朝大海,春暖花開【詳細】
麗江第一村:人杰地靈的清水古鎮
清水古鎮又名清邑、清水驛、清邑街,位于麗江市永勝縣程海湖南岸的金沙江狹長的干熱河谷平地。從邊疆沃土拓荒之早,中原漢文化積淀之深;從人才開發之多及自然村落綿延之大等諸多方面評價,堪任"麗江第一村"。【詳細】
園林景觀小品,哪一款更有情趣
生活的創意【詳細】